パース&模型等制作
現在受付休止中です

家を建てる際、施主が請負業者と間取りや外観あるいは材料について随時打ち合わせを行いますが、平面的な図面だけでは理解し難い面があります。そこで、パースや模型を用いることにより、お互いの理解を深め、より満足できる家づくりが可能になります。
パースや模型は分かりやすいというだけでなく、完成後も玄関や居間に飾ったりして新築の記念品として重宝されます。
パースを描く手法にはいろいろありますが、弊社はコンピュータグラフィックスを利用した外観パース、内観パース、断面パース、鳥瞰パースを制作しています。

また、住宅模型には住宅を設計する際に、形状や大きさ、使い勝手などを確認するために作るスタディ模型と、住宅の完成した様子を表現した完成予想模型のプレゼンテーション模型がありますが、弊社は主にプレゼンテーション模型を作っています。スタディ模型が必要な方はご相談ください。今までもパースや模型の良さは分かっていたのですが、手間が掛かるとか、価格が高いなどの理由で一般的ではありませんでした。そこで、弊社は、より多くの人にパースや住宅模型を理解していただくために、コンピュータを利用して高品質で、しかもお求めになりやすい低価格で承ることにしました。
お勧めの理由
| 施主の方 | 一般の方 | 業者の方 |
|---|---|---|
|
|
|
パース&模型等の仕様
パース

フォトフレームの額縁
- コンピュータで描いた外観パース
- コンピュータで描いた内観パース
- コンピュータで描いた断面パース
- B4判の光沢・厚手の写真用紙に印刷(A3判まで対応可)
- B4判のフォトフレームの額縁付き
- 制作時間:基本3日間
![]() |
![]() |
![]() |
| 外観パース | 内観パース | 断面パース |
住宅模型
【1】 プレゼンテーション模型

住宅模型
- 外観模型(縮尺:1/50、1/75)
- スチレンボード(3mm)の表面にカラー図面を貼り付け
- 外壁に使用するサイディング等の表現も可能
- 外建具(窓等)は図面印刷仕上げで穴あけ加工は行いません
- 敷地(模型台)は5mmのボードにて作成
- 基本的に外構・樹木・車・人物等の模型を付けます
- 内部が見える仕様ではありません
- アクリルケースは有料5,000円(郵送の場合はご購入ください)
- 作成時間:基本5日間
【2】 スタディ模型

スタディ模型
- 建物の仕様はプレゼンテーション模型と同じ
- 外構や樹木・車・人物等はなし
- 料金:9,000円
【3】 模型写真

模型写真
- 額入り若しくはパネル仕上げ
- レイアウトはご相談の上、計画
- サイズはA3判まで可能
- 料金:2,000円
プレゼンボード

プレゼンボード
プレゼンボードは間取りプランを分かりやすく説明するために描いた図面で、配置図、各階平面図、求積図、立面図、パースなどが描かれています。間取りプラン決定後は新築の記念にもなります。
- A3判のスチレンボード(5mm)に配置図、各階平面図、パース等のカラー図面を貼り付け
- ビニールシートでカバー仕上げ
- 制作時間:基本3日間
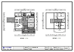
基本図面
基本図面とは、いわゆる基本設計の設計図面で、配置図、各階平面図、各面の立面図が1/100の縮尺で描かれています。この図面は確認申請にも利用できます。
- 配置図、各階平面図、立面図など描かれたA3判のケント紙
- 希望により、ビニールシートでカバーしたボード仕上げ(無料)
- 制作時間:基本3日間
![]() |
![]() |
![]() |
ご依頼から納品・お支払いまでの流れ
- 依頼書の請求
- 来社、電話、FAX、メール、問い合わせフォームからお気楽にどうぞ。
- 弊社からお客様へ依頼書を送付
- お客様のご希望に合わせて、FAX、メール、郵便等でお送りします。
- お客様から弊社へ必要書類を返送
- 依頼書と必要図面を来社、FAX、メール、郵送等でご返送ください。
※必要図面とは
- 平面図、配置図、立面図、断面図、仕上げ表などの図面等
- 上記の他、外構図、現場の写真などがあれば助かります
- パース&模型等の制作
- お客様からお送りいただいた必要図面を基に制作します。制作中、確認のため画像をメール等でお送りすることがあります。また図面上の疑問点などが生じた場合は、ご連絡致します。
- 納品方法
-
納品方法は来社いただくか「ゆうパック」での発送になります。なお、送料はお客様でご負担ください。
※送料は関東地方の場合1,600円(模型の場合)です。
- お支払い
-
ゆうパックの代金引換でお願いします。
※代金引換の手数料468円(5万円以上の場合は682円)は、お客様にてご負担ください。
料金
| 料金 (税込み) |
備考 | |
|---|---|---|
| 外観パース | 4,000円 | フォトフレームの額縁付き(B4判) |
| 内観パース | 2,000円 | フォトフレームの額縁付き(B4判) |
| 断面パース | 5,000円 | フォトフレームの額縁付き(B4判) |
| 住宅模型 | 14,000円 | アクリルケース(5,000円)は別売 |
| プレゼンボード | 5,000円 | A3判パネル仕上げ(ビニールカバー付き) |
| 基本図面作成 | 8,000円 | A3判パネル仕上げ(ビニールカバー付き) |
※パース&模型は基礎データ入力費として8,000円を料金に加えます(注文品が複数の場合は1回のみ)。間取りの設計や住宅設計教室で基礎データがある場合は基礎データ入力費は不要です。





