ハウス設計からのお知らせ
コロナ禍の間取り(3)
昨年から間取りに対する要望が多くなったことがあります。コロナ対策の間取りのためです。例えば、コロナウイルスを家に持ち込まない対策やリモートワークのためのスペース確保などです。そこで、今回も引き続きコロナ禍の間取りについてまとめてみました。
コロナ禍の間取りのポイント
5 家族全員で楽しめる生活にする
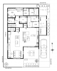
ステイホーム期間、家族みんなで料理を楽しんだという人たちも多かったと思います。そのためには、家族みんなが使いやすいキッチンにするなどの工夫が必要であると思います。そのような意味で、複数人が同時に作業できるアイランドキッチンを希望される方が増えたように思います。また、アウトドア生活も楽しめるウッドデッキやバルコニーの希望も多くなりました。
2021年10月15日【135】
最近の記事
- 洗面スペースのプライバシー確保について
- 新年のご挨拶
- 「間取り診断」と「外構の提案」を依頼して
- 全国制覇達成!
- 新年のご挨拶
- アドレス変更のお知らせ
- 家を建てる人へのアドバイス ~アプローチ~
- ファミリークローゼットについて
- 新年のご挨拶
- コロナ禍の間取り(間取りの例 2)
- コロナ禍の間取り(間取りの例 1)
- 新年のご挨拶
- コロナ禍の間取り(4)
- コロナ禍の間取り(3)
- コロナ禍の間取り(2)
- コロナ禍の間取り(1)
- 「間取りの提案書」のサンプルをリニューアルしました!
- 「間取りの修正案」のサンプルを作りました。
- ホームページをリニューアルしました!
- 外構計画案のサンプルをリニューアルしました!
- 「間取りの修正案」を提案します!
- 外構計画の提案をします!
- 新年のご挨拶
- 家を建てる人へのアドバイス ~庭の設け方(2)~
- 家を建てる人へのアドバイス ~庭の設け方(1)~
- 家を建てる人へのアドバイス ~駐車スペースの設け方(3)~南側道路
- 家を建てる人へのアドバイス ~駐車スペースの設け方(2)~北側道路
- 家を建てる人へのアドバイス ~駐車スペースの設け方(1)~東・西側道路
- 家を建てる人へのアドバイス ~後悔しない・失敗しない間取り作りの5つのポイント~
- 後悔しないための間取り作り(3) ~「間取り診断」&「間取りの設計」の感想文から~
- 後悔しないための間取り作り(2) ~「間取り診断」&「間取りの設計」の感想文から~
- 新年のご挨拶
- 後悔しないための間取り作り(1) ~「間取り診断」&「間取りの設計」の感想文から~
- 納得できる間取りを作るために(3) ~「間取りの設計」の感想文から~
- 納得できる間取りを作るために(2) ~「間取りの設計」の感想文から~
- 納得できる間取りを作るために(1) ~「間取りの設計」の感想文から~
- 失敗しないための間取り作り(3) ~間取り診断後の業者さんとの関係~
- 失敗しないための間取り作り(2) ~間取り診断して良かったこと~
- 新年のご挨拶
- 失敗しないための間取り作り(1) ~間取り診断を依頼した理由~
- 家づくり 住まいづくり 住宅設計 相談・コンサルティング・アドバイス⑰ ~トイレの位置~
- 家づくり 住まいづくり 住宅設計 相談・コンサルティング・アドバイス⑯ ~スキップフロア~
- 家づくり 住まいづくり 住宅設計 相談・コンサルティング・アドバイス⑮ ~階段~
- 家づくり 住まいづくり 住宅設計 相談・コンサルティング・アドバイス⑭ ~玄関 ~
- 家づくり 住まいづくり 住宅設計 相談・コンサルティング・アドバイス⑬ ~寝室 ~
- 新年のご挨拶
- 家づくり 住まいづくり 住宅設計 相談・コンサルティング・アドバイス⑫ ~和室 ~
- 山形県、福井県、島根県、鳥取県、徳島県、高知県、佐賀県の新築住宅取得をお考えの方へ ~間取り診断はいかがですか?~
- 家づくり 住まいづくり 住宅設計 相談・コンサルティング・アドバイス⑪ ~キッチン ~
- 家づくり 住宅設計 後悔しないための間取り作り ~不安や悩みから開放されるために~
- 木造住宅の耐震 ~熊本地震に学ぶ~
- 失敗しないための家づくり ~間取りのセカンドオピニオン~
- 家づくり 住まいづくり 住宅設計 相談・コンサルティング・アドバイス⑩ ~家族の共同的な空間 ② ~
- 住宅着工数 13.7%増 10月、前年比
- 新年のご挨拶
- 家づくり 住まいづくり 住宅設計 相談・コンサルティング・アドバイス⑨ ~家族の共同的な空間 ① ~
- 新築の間取り相談 事例3
- 新築の間取り相談 事例2
- 新築の間取り相談 事例1
- 家づくり 住まいづくり 住宅設計 相談・コンサルティング・アドバイス⑧ ~吹き抜け~
- 【新築の間取り作り】気軽に相談のできるパートナー
- 家づくり住まいづくり 住宅設計 相談・ コンサルティング・アドバイス⑦ ~融通性~
- 新年のご挨拶
- 家づくり住まいづくり 住宅設計 相談・コンサルティング・アドバイス⑥ ~採光~
- 家づくり 住まいづくり 住宅設計 相談・コンサルティング・アドバイス⑤ ~通風と換気~
- 家づくり・住まいづくり相談(セカンドオピニオン) ~低料金に関するお客様の声~
- 家づくり・住まいづくり相談(セカンドオピニオン)
- 家づくり・住まいづくり相談 ~住宅を専門に扱っている第三者の専門家にチェックしてもらいましょう!~
- ハウス設計の住宅設計教室 「間取り作りコース(通信制)」 ~自分で間取りを作りませんか!~
- 家づくり 住まいづくり 住宅設計 相談・コンサルティング・アドバイス④ ~サニタリースペース~
- 家づくり 住まいづくり 住宅設計 相談・コンサルティング・アドバイス③ ~収納計画~
- 家づくり 住まいづくり 住宅設計 相談・コンサルティング・アドバイス② ~ 家事動線を良くするためには作業の流れを考える ~
- 家づくり 住まいづくり 住宅設計 相談・コンサルティング・アドバイス① ~ 間取りは外構計画といっしょに考える ~
- 家づくり 住まいづくり 住宅設計 間取り相談・コンサルティング Q&A(11) ~ 間取り上の、アレルギー性鼻炎対策と降灰対策は? ~
- 家づくり 住まいづくり 住宅設計 間取り相談・コンサルティング Q&A(10) ~ ウォークインクローゼット・納戸について ~
- 新年のご挨拶
- 家づくり 住まいづくり 住宅設計 間取り相談・コンサルティング Q&A(9) ~ 日当たりと採光 ~
- 家づくり 住まいづくり 住宅設計 間取り相談・コンサルティング Q&A(8) ~ 小屋裏空間は2階建て? ~
- 家づくり 住まいづくり 住宅設計 間取り相談・コンサルティング Q&A(7) ~ 外構計画? ~
- 家づくり 住まいづくり 住宅設計 間取り相談・コンサルティング Q&A(6) ~ 24時間換気システム? ~
- 家づくり 住まいづくり 住宅設計 間取り相談・コンサルティング Q&A(5) ~ 小上がりの高さ? バルコニーの幅? 軒の出? ~
- 家づくり 住まいづくり 住宅設計 間取り相談・コンサルティング Q&A(4) ~ 引き戸か、開き戸か? 廊下の幅は? ~
- 家づくり 住まいづくり 住宅設計 間取り相談・コンサルティング Q&A(3) ~ 部屋の配置? ~
- 家づくり 住まいづくり 住宅設計 間取り相談・コンサルティング Q&A(2) ~ 収納計画? ~
- 家づくり 住まいづくり 住宅設計 間取り相談・コンサルティング Q&A(1) ~ 家の広さ? 収納スペースの広さ? ~
- 納得できる家づくり お手伝い ~朝日新聞「ひむかの人」に掲載されました~
- 家づくり・住まいづくり相談 ~この料金でこのクオリティと安心感!~
- 家づくり・住まいづくりの相談はハウス設計へ 「間取りの設計」 ~より安心してご依頼頂くために~
- 謹賀新年
- ホームページをリニュアルしました!
- セカンドオピニオンの建築版「間取り診断」 ~「宮崎日日新聞」のコラムの欄で紹介される~
- 新築前に間取り助言 ~宮崎日日新聞に掲載されました~
- リフォームの相談はハウス設計へ ~リフォームのプランを提案します(宮崎・鹿児島の地元だけではなく全国対応)~
- 家づくり・住まいづくり相談 ~住宅建設業者の選び方~
- 消費税増税前、宮崎県内の住宅市場が徐々に活発化
- 朝日新聞の広告 ~間取りのセカンドオピニオン~
- リフォームの相談はハウス設計へ ~団塊の世代だから・・・ これからのリフォームを!~
- 家施工前に診断 間取り改善提案 ~南日本新聞に掲載されました~
- 謹賀新年
- 間取り診断で 地域に恩返し
- 家づくり 住まいづくり 住宅設計 マイホームづくり「間取り(プランニング)相談コーナー」(第7回) ~住宅設計の進め方~
- ハウス設計の「家づくり相談コーナー」(第6回) ~住宅設計の流れ~
- 家づくり 住まいづくり 住宅設計 マイホームづくり「間取り(プランニング)相談コーナー」(第6回) ~新築住宅のプラン作り~
- 家づくり 住まいづくり 住宅設計 マイホームづくり「間取り(プランニング)相談コーナー」(第5回) ~都市型住宅には2階のリビングがお勧め~
- 家づくり 住まいづくり 住宅設計 マイホームづくり「間取り(プランニング)相談コーナー」(第4回) ~バルコニー~
- 家づくり 住まいづくり 住宅設計 マイホームづくり「間取り(プランニング)相談コーナー」(第3回) ~間取り相談事例~
- 家づくり 住まいづくり 住宅設計 マイホームづくり「間取り(プランニング)相談コーナー」(第2回) ~二世帯住宅~
- 家づくり 住まいづくり 住宅設計 マイホームづくり「間取り(プランニング)相談コーナー」(第1回) ~バリアフリー~
- 夕刊読売新聞に間取り診断の記事が掲載されました!
- ハウス設計の「家づくり(マイホーム)相談コーナー」(第5回) ~ 都城市在住、宮崎県在住、鹿児島県在住の方はお立ち寄りください ~
- 家づくり・住まいづくり 間取り診断 Q&A ~住宅購入の契約前に間取り診断を~
- ハウス設計の「家づくり(マイホーム)相談コーナー」(第4回) 宮崎県の住宅事情(その2)増改築市場の動向
- ハウス設計の「家づくり(マイホーム)相談コーナー」(第3回) 宮崎県の住宅事情(その1)住宅建設の動向
- ハウス設計の「家づくり(マイホーム)相談コーナー」(第2回) 過去15年間の住宅着工件数の推移
- ハウス設計の「家づくり(マイホーム)相談コーナー」(第1回) 消費税増税と住宅着工時期 ~今が買い時か?~
- 家づくり 住まいづくり 住宅設計の相談はハウス設計へ
- 家づくり・住まいづくりは自分でプラン作り ~家を建てたい人のための「住宅設計教室」 受講生募集!~
- 「間取り診断」のコース設定及び料金について(お知らせ)
- リニューアルオープン
- 家づくり・住まいづくりをサポートする「ハウス設計」事務所完成
- ハウス設計 ホームページを公開しました.
